Garden In A Room

A Journey in Design: Rear Extension to Grade II Listed Building in Trowbridge

Introduction: A Window into the Process

At Studio Four Point Ten, a significant part of our work happens long before a design reaches its final form. Every project begins with a period of exploration - testing ideas, challenging assumptions, and following creative threads that don’t always make it into the finished scheme. These early-stage concept studies are often some of the most exciting and thoughtful parts of the process, yet they are rarely seen beyond our clients.

This series aims to bring those elusive moments to light.

Through these articles, we’ll open up our design process - sharing not just the polished outcomes, but the journey behind them. We’ll explore how we interpret a client’s brief, how initial ideas take shape, and how more experimental, abstract, and sometimes unexpected directions inform the final design. Along the way, we’ll also revisit ideas that didn’t make the cut but still hold value; concepts that, in another context, might have become projects in their own right.

 
photo of existing rear lean-to structure on listed house in Trowbridge, to be replaced with new rear extension. The interior photo shows how clients bring great character to spaces in the wonderful things they choose to display around their homes.

Photos of the existing rear lean to on the listed building.

 

Creative Solutions for Historic Building Settings

Alongside the constraints of working within a Grade II listed structure, the physical limits of the site presented their own challenges. The extension sits tightly between neighbouring properties, with modern additions on both sides restricting the allowable height of any new roof. These enclosing walls and garden boundaries also limit the amount of direct light reaching the plan. In response, the design pushes outward to frame moments within the garden, while carefully positioned rooflights draw daylight down from above - introducing movement, shadow play, and glimpses of sky into the heart of the kitchen, and reinforcing a subtle but constant connection to the outside.

Working in tandem with the reconfigured kitchen, the new extension is conceived as a more open and sociable part of the home - one that supports cooking, gathering, and everyday life without the interruption of thick stone walls. Within a listed building, however, such interventions require careful balance. The design therefore tests the minimum necessary alteration to the existing fabric, opening up connections while retaining a sense of the building’s original cellular character.

 
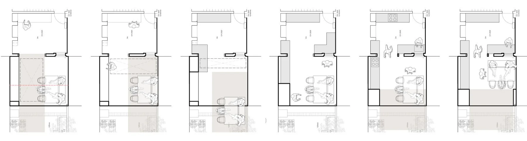
A series of floor plan layout options tested at the concept design stage exploring access, furniture and rooflight configurations

Floor plan layout options testing the impact of the new access, rooflight and furniture placements.

Ground floor plan layout of rear extension to Grade 2 listed building in Trowbridge to form open plan kitchen and dining room space connected to courtyard garden.

Preferred layout for new rear extension to Grade II listed building.

 

The reorganisation of the kitchen itself with new fitted elements (and options tested for full height cupboards vs open shelving) also helps to visually stitch the spaces together - interlocking with the chimney structure and guiding the eye across the threshold creating a sense of continuity and dissolving the separation of the walls. Rather than relying on a fully open-plan arrangement, the design works more subtly, allowing spaces to remain distinct yet strongly interconnected.

An important part of this balance is the retention of the original timber-framed kitchen window, a key aspect of the client’s brief. Preserving this feature maintains a strong sense of character and provides a familiar focal point within the space, while helping to mediate the relationship between old and new - ensuring that the intervention enhances, rather than diminishes, the qualities of the historic building.

 
Sketch visuals taken from internal 3D computer modelling produced in Vectorworks to test the character of space and impact of new kitchen layout and fitted joinery features.

Sketch visuals created from 3D computer modelling used to test early design ideas for the new kitchen access and fitted furniture.

 

Refining Interior Space Through Iterative 3D Modelling

3D modelling plays a key role in our design process, allowing us to test ideas in real time and reveal insights not always evident in flat drawings. Subtle shifts in colour, material, light, and openness can be quickly explored - often challenging initial assumptions and guiding more informed design decisions. It also offers clients a more intuitive way to understand the proposals, conveying space and atmosphere far more clearly than 2D drawings alone.

These sketch views were developed to explore fitted furniture at the threshold between the two spaces. An early idea for a full-height storage wall was quickly tested and set aside, revealing itself to be far less successful than a lighter, more open shelving approach that better maintained the visual flow and provided a more flexible canvas for the client to overlay their personality.

The existing doorway restricted movement, and through modelling we tested just how far this opening really needed to be extended. Rather than simply enlarging it centrally (as might be the instinctive response) we proposed forming a new offset opening within the existing wall, while partially infilling the original doorway to restore valuable kitchen worktop space. This more nuanced move allows the kitchen to unfold naturally into the adjoining dining space, improving both flow and usability. The existing fireplace remains at the heart of the kitchen, carefully integrated with the new joinery like pieces of a puzzle.

 
Interior design precedent image for new rear extension to listed building testing ideas of exposed timber frame roof and cobbled floor finishes used to connect the inside with the garden beyond - blurring boundary between inside and out.

Example precedent images used to convey early ideas a rear extension with an exposed timber frame roof and cobbled floor finishes shared with the garden.

 

To address the issue of headroom, we explored exposing the roof structure internally to capture its full depth, alongside testing the potential to lower the floor level. While maintaining a consistent floor might have seemed the simplest way to connect the spaces, introducing a gentle step down adds a sense of transition and spatial drama. It marks a shift in atmosphere - moving from house to garden space - so that the new room begins to feel more closely aligned with the courtyard beyond. From this point, the connection is extended further, with cobbled flooring flowing seamlessly through the glazing and out into the garden.

 
 
concept sketch image of rear extension elevation from garden showing idea for growing wall cladding feature wrapping the extension with climbing plants to embed in the garden setting.

Blurring the Boundary Between House and Garden

Turning to the exterior, we were keen for the extension to feel grounded within the garden - less an addition, more a natural part of its setting. Beyond simply reconnecting the interior to the outside, the aim was for the form to sit comfortably as a backdrop when approached from the rear, contributing positively to the overall character of the garden.

We explored a number of material approaches, initially testing the idea of a “growing wall”- a façade softened and partially reclaimed by planting, with vines and foliage overlapping the glazing and blurring the boundary between house and garden. These reference images were used to communicate the potential of the idea to our client, and a simple illustrated elevation worked up to put the idea into context.

While landscape design and planting remain central to our thinking - we see building and garden as inseparable companions (and you might enjoy reading our previous article on the importance of thoughtful garden design in our work here) - this particular approach didn’t align with the client’s aspirations. Alongside it, we had already begun developing an alternative cladding strategy (using tiles) which ultimately came into focus and became the direction we chose to pursue.

 
Precedent images of planted structure, growing walls and green walls used to embed the new extension in the rear garden setting.

Example images used to convey early ideas for the ‘growing wall’ approach to embedding the new structure in its garden setting.

Some projects are about finding a new order and helping to make sense of the spaces left over between buildings. We work to develop a new narrative for how people arrive at the house and what the first impressions are of a site. We set up new routes to explore around the property on your way to discover moments for reflection, for rest or for play, and can help to build a richer sense of journey when moving between areas.

 

Glazed Tile Cladding: Materiality Rooted in Heritage

With so little wall area remaining around the new glazing, the extension becomes less about mass and more about refinement. Rather than defaulting to timber, brick, or stone, this presented an opportunity to explore something more distinctive. Experienced at close range within the south-facing garden, it called for a material with an almost jewel-like quality.

A small-format glazed tile cladding offered exactly this. On one level, it creates a richly decorative surface - reflective, shimmering, and subtly animated by changing light throughout the day. In such an intimate setting, it brings depth, texture, and a sense of craft to the garden backdrop. Through variations in colour, gloss, texture, and pattern, the surface shifts in character - catching light, introducing rhythm, and creating tactile richness, while changes in coursing and orientation can add further layers of play.

Example images used to test early ideas of a glazed green tile cladding with references drawn to Trowbridge’s historic textile industry and ‘broadcloth’ fabric.

 
Proposed Elevation studies - finding our rhythm and weave within the glazed green tile cladding of the rear extension to the Grade 2 listed building in Trowbridge.

Proposed Elevation studies - finding our rhythm and weave within the glazed green tile cladding .

 

At the same time, the cladding enters into a dialogue with local identity. Trowbridge’s rich textile heritage; particularly its finely woven broadcloth, known for its structure and subtle lustre - offered a point of reference. Drawing on this, the façade echoes the language of textile: a disciplined grid, a woven rhythm, and a surface that gently responds to light. Soft-gloss glazes suggest the sheen of wool, while tonal variation adds depth and tactility.

In this way, the material operates on two levels: as a crafted, jewel-like intervention within the garden, and as a subtle reflection of Trowbridge’s cultural heritage - rooted in place yet expressed in a contemporary way, and importantly, with room for a little playfulness in the detail work still to come.

Thank you for reading.

 
Next
Next

Do I Need an Architect for My Project?